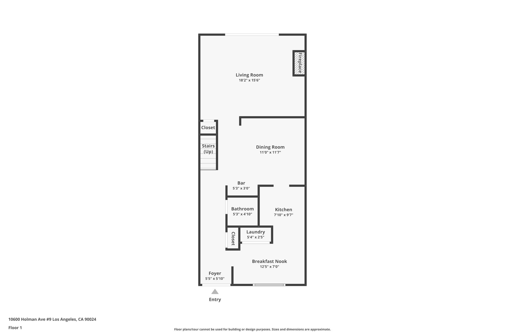
10600 Holman Ave Unit 9
Los Angeles, CA 90024
Townhouse

Looking for that perfect home? This could be the one!

Have you been searching the Internet for that perfect home? This interactive presentation has been made available by the listing agent to help you get a feel for this property and help you determine if this home could be the one! Enjoy the presentation. When you've completed the tour, feel free to contact your Realtor with any questions or to arrange a showing.


Beds

3

Baths/Half

3/0

Garages/Spaces

1/2

Interior

1615

Year

1974

Lot

19704

Contact

Suzanne
Suzanne Seini
Realtor, CA DRE #02047620
Innovate Realty
Office: +1 949-617-2875